一、用途
OA2型转鼓式螺旋格栅除污机是吸收消化国外 技术,结合我国水处理工程的具体实际情况,由我公司自行研究、开发、制造出 来一种新型设备,适用城市污水处理厂的细格栅,也是集栅污物的截留收集、输送和压榨三者功能为一体的新产品。
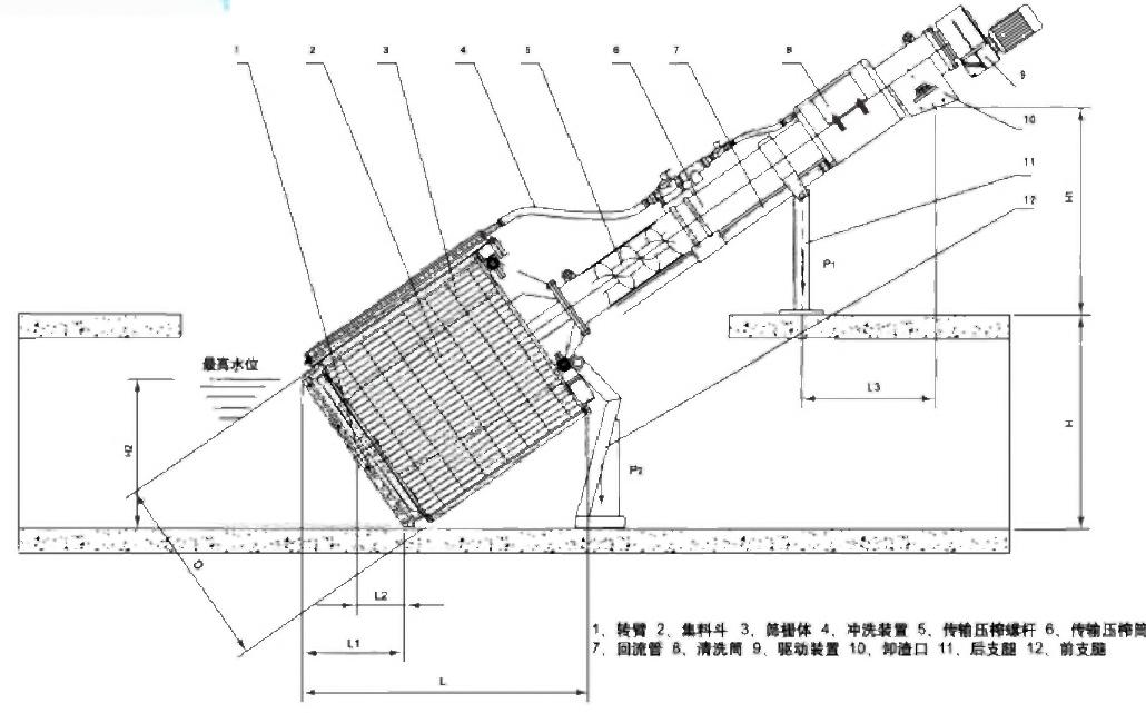
二 、结构及工作原理
该设备采用转鼓螺旋式,由圆形筛筒作为栅面,与水平面成35°安装在水渠中,当污水从格栅端头流入筛筒内,大于栅隙的滤渣被拦截,沉积在筛筒内表面,整个筛筒由电机驱动旋转,筛筒上方的清渣刷与冲水机构对筛面进行清洗,将滤渣冲落入中央物料槽内,由输送螺杆提升,经压榨、脱水后,由卸料口落入物料箱或输送机进行外运处理。
三、主要技术参数和安装尺寸表
参数 | 型号 | OAa-600 | OA₂-800 | OA-1000 | OA₂-1200 | OA-1400 | OA₂-1600 | OA₂-1800 | OA₂-2000 | OAz-2200 | OA2-2400 | OA-2600 |
设备宽度B(mm) | 600 | 800 | 1000 | 1200 | 1400 | 1600 | 180 | 2000 | 2200 | 2400 | 2600 | |
据道宽度B,(mm) | 620 | 820 | 1020 | 1220 | 1440 | 1640 | 1840 | 2040 | 2240 | 2440 | 2640 | |
栅条间隙b(mm) | 1-5 | |||||||||||
安装角度a(°) | 35 | |||||||||||
集道深度H(mm) | H₂+300~500 | |||||||||||
知料口至平台高度 H₁ (mm) | 1000~1500 | |||||||||||
旋转速度n(r/min) | *6 | |||||||||||
电机功率N(kw) | 1.1 | 1.5 | 2.2 | |||||||||
安装尺寸 (mm) | L | 860 | 1100 | 1340 | 1580 | 1810 | 2040 | 2280 | 2670 | 2700 | 3080 | 3410 |
L₁ | 330 | 450 | 560 | 680 | 780 | 910 | 1000 | 1120 | 1230 | 1350 | 1460 | |
L | 125 | 125 | 125 | 125 | 125 | 125 | 125 | 125 | 125 | 125 | 125 | |
L₃ | 1230 | 1420 | 1420 | 1310 | 1590 | 1590 | 1590 | 1520 | 1520 | 1520 | 1520 | |
400 | 520 | 670 | 800 | 930 | 1110 | 1230 | 1300 | 1500 | 1680 | 1750 | ||
土建载荷 | P₁ (KN) | 6.6 | 7.7 | 9.8 | 11.0 | 18.7 | 21.0 | 23.4 | 26.1 | 36.6 | 40.4 | 45.0 |
P₂ (KN) | 3.3 | 3.86 | 4.9 | 5.5 | 9.4 | 10.5 | 11.7 | 13.1 | 18.3 | 20.2 | 22.3 | |
四、主要特点
■整机结构紧凑,占地面积小,易于安装操作和维护;
■设备栅条间隙小, 一般可设计在1~5mm范围内;
■截污效率高.封闭式输送。对环境不产生污染:
■设备可实行全自动控制,运转平稳、能耗低、噪声小;
■设备运行过程中实行自动清洗,不堵塞。
五、过水流量表
型号 参数 | OA-600 | OAa-800 | OA-1000 | OAa-1200 | OAx-1400 | OAx-1600 | OA-1800 | OA-2000 | OAa-2200 | OAx-2400 | OAa-2600 | ||
栅前水深Ho(mm) | 400 | 520 | 670 | 800 | 930 | 1110 | 1230 | 1300 | 1500 | 1680 | 1750 | ||
过栅流速v(m/s) | 0.8 | ||||||||||||
问 称 (mm |
过水
(L/s) | 36 | 60 | 100 | 一 | 一 | 一 | 一 | 一 | 一 | 一 | 一 | |
2 | 54 | 90 | 154 | 214 | 306 | 402 | 510 |
一 | |||||
3 | 65 | 110 | 192 | 262 | 373 | 490 | 622 | 768 | 928 | 1104 | 1516 | ||
4 | 68 | 120 | 203 | 280 | 402 | 572 | 756 | 930 | 1122 | 1300 | 1710 | ||
5 | 70 | 130 | 224 | 310 | 400 | 616 | 815 | 1020 | 1213 | 1456 | 1840 | ||
六、外形安装尺寸图

内容为空!
